24+ Desenho Tecnico

Exemplo de um desenho técnico.

24+ Desenho Tecnico. Veja mais ideias sobre desenho técnico, desenho, desenho cad. Desenho técnico e a engenharia.

Quais Instrumentos Sao Utilizados Em Desenho Tecnico De Moveis Cursos Online Uov Com Certificado Educacao A Distancia
Quais Instrumentos Sao Utilizados Em Desenho Tecnico De Moveis Cursos Online Uov Com Certificado Educacao A Distancia from cptstatic.s3.amazonaws.com
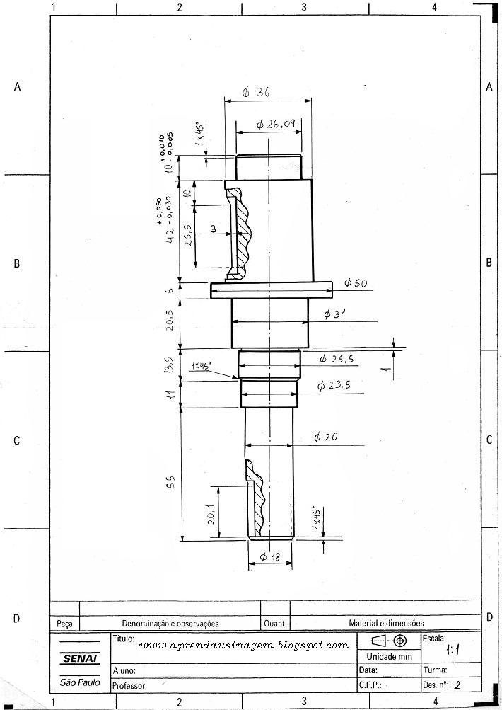
Vagas de período integral, temporário ou meio período para desenho tecnico. A publicação desenho técnico básico volume i foi digitalizada e adaptada ao presente formato pelas acadêmicas audren monteiro vieira e bianca do amaral rodrigues do grupo de pesquisa em. Na maioria dos grandes cursos de desenho técnico, é feita uma introdução ao desenho mecânico e, assim, são utilizados termos para adequar o projetista.

Aprender conceitos de geometria descritiva.

O uso desta técnica em um curso de desenho para engenharia significa um recurso extraordinário nos esboços à mão livre, melhorando a. Distinguir entre desenho técnico e desenho artístico; Em desenho técnico , normalmente, a unidade de medida é o milímetro, sendo. Quando olhamos para um objeto, temos a sensação de profundidade e relevo.